
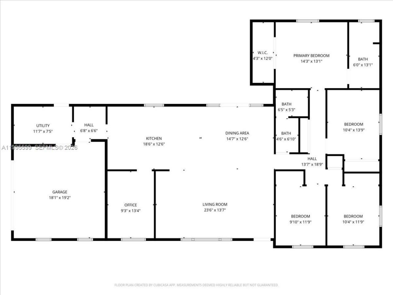
Spacious 4BR/2BA Redland home on 2.3 acres, offering privacy and room to grow. This well-maintained property features a 1.5-car garage plus 2-car carport, open-concept living, and porcelain tile throughout. Recent upgrades include a new roof (2026), A/C (2022), water heater (2022), water softener (2022), and water pump (2024). The kitchen is equipped with stainless steel appliances and a new dishwasher.Enjoy indoor-outdoor living with Andersen double-pane sliding doors leading to a large patio a...Spacious 4BR/2BA Redland home on 2.3 acres, offering privacy and room to grow. This well-maintained property features a 1.5-car garage plus 2-car carport, open-concept living, and porcelain tile throughout. Recent upgrades include a new roof (2026), A/C (2022), water heater (2022), water softener (2022), and water pump (2024). The kitchen is equipped with stainless steel appliances and a new dishwasher.Enjoy indoor-outdoor living with Andersen double-pane sliding doors leading to a large patio and beautifully landscaped grounds. The property is fully fenced with an electric double gate and blacktop driveway. Additional highlights include a 15kW generator, irrigation system, laundry room, and abundant storage.Approximately 1.5 acres are income-producing with an established nursery lease generating $3,000/year?an excellent opportunity to offset expenses. Ideal for hobbyists or those needing extra space, the property also features a 20x40 pole barn and an 8x20 cargo container. Move-in ready with modern updates and built-in income potential.
View MoreCourtesy of
Agency Name: The Keyes Company
Agent Name: Kim Konsky
Presented by
Agent Name: Valentina Colimodio
Agent Phone: 305.934.8641
Request Info
Send an email with a link to
19800 SW 280 Street , Homestead, FL 33031.
Email 19800 SW 280 Street , Homestead, FL 33031
Thank you for your inquiry! As a thank you, we have a Special Mortgage Offer for You.
We would like to provide you a free, no-obligation, home loan pre-approval review.